
建筑概况:
建筑设计:密斯·凡·德罗(Ludwig Mies van der Rohe)
地点:美国,伊利诺伊州,芝加哥西南约58英里的普莱诺,福克斯河附近(Plano, Illinois, USA)
设计时间:1945
建成时间:1951
建筑面积: 1,500平方英尺(140 m2)
实拍视频:
视频原链接:https://v.qq.com/txp/iframe/pl ... tk4ps



源起:
1945年末,尚未名声大噪的密斯认识了42岁的芝加哥女医生艾迪诗·范斯沃斯(Edith Farnsworth )。她给密斯带来了一个实现理想建筑的机遇——一个位于优美环境中的只有一个人使用的周末度假别墅。就像1929年的德国馆一样,这正是密斯梦寐以求的建筑,几乎无任何功能限制,可以让他自由发挥。密斯自然没有辜负这一天赐良机,这可以从范斯沃斯医生在1946年见到方案后给密斯回信中得到证明。她写到:“亲爱的密斯,对于用精神和灵魂创造之物是无法用金钱来偿付的!这样的作品,一个人只能用爱和尊敬去体认和珍藏。‘’由于种种原因,该住宅直到1949年9月才动工,1951年完工。“基本的关系,纯白的颜色和严格的精确所唤起的感觉,用温克尔曼‘高贵的单纯与静谧的伟大’来描述最为贴切。”

冬天

秋天








建筑简介:
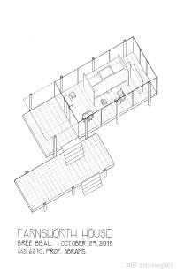
整个住宅由主体建筑和其南侧的一块平台构成,它们被三排白色的工型钢柱从地面上撑起。主体部分是一个四面透明的玻璃盒子,就像飘浮地福克斯河畔(Fox River)浑然天地间的一块晶体,在湖光山色的映衬下,熠熠生辉,散发出无穷的魅力。这使得它立刻成了现代建筑中继赖特流水别墅和柯布西耶萨伏伊别墅后的又一个里程碑式的住宅作品。
为了使住宅采光良好,密斯将该住宅从地面上提升5英尺3英寸(约1.6米),并且只允许钢柱与地面接触。在钢柱之间,植物依然可以自由生长。
而在晶莹华美的外表下,其肌体建构的完美清晰更加令人叹服,事实上,其外在的完美在很大程度上正源于其内在建造的清晰,而在这种清晰建造的背后,匀质网格秩序的应用可谓居功至伟,因为它再也不像在德国馆中那样仅仅是被动的”后来者“,而是先入为主地去主导建造。
住宅呈现出辛克尔回旋式平面的简化状态,几何原则对平面的控制表现出明显的理性主义精神,暗示了对古典主义的回归。室内家具及房间的布局是为了不妨碍能看到四面玻璃幕墙外的风景而设计的,人在其中,吃、穿、住、睡等日常活动都局限在房间中心一个有限的范围内,而这个有限范围周边任一角度都在暗示着屋主,欣赏透明玻璃幕墙外的景色。密斯对此曾如是说到,“大自然也应该有自己的特色。我们一定不能因住宅的颜色和内部装饰而扰乱自然的氛围,反而更应该尝试使自然、居所以及人类三者结合,从而达到高度统一。”









室内实拍:
视频原链接:https://v.qq.com/iframe/player ... o%3D0










设计解析:
“匀质网格”的先入为主——简单却理性规整的结构体系
范斯沃斯住宅中的匀质网格是矩形网格。其开间方向的基本模数与建筑在这一方向上的结构体系关联,具体而言,一个柱距被隐藏在顶棚及底板内的工字钢梁分成了均等的四份,每一份又恰与地面上的两块石灰华大理石铺块对应。这就导出了建筑在开间方向上的一个基本的、建立在结构框架组构基础上的模数递进线索,即密斯很有可能是首先根据结构的合理性确定了22尺的柱距,进而将工字钢梁的基本间距界定为柱距的1/4,即5尺6寸,这一数值再被二分,就成了地面上的石灰华大理石的长度——2尺9寸,而后者也成了建筑在开间方向上一个基本模数。无论这一开间方向的模数递进体系是从宏观的结构柱距出发逐级向下推演,抑或是从微观的地面铺装尺寸出发逐级向上扩展,结果是它已建立,并将整个建筑从微观的块材拼接到宏观的结构组构全盘统摄在一起,从一种整体机制上为建构的清晰呈现提供了逻辑契机。这再一次地让我们想起了密斯所说的“结构”(structure):“结构是哲学性的。结构是一个整体,从上到下,直至最后一个细节都贯穿着同样的观念,这就是结构。”

由于建筑的结构体系只沿开间方向展开,因而建筑进深方向上基本模数的确定没有多少结构上的意义,它只与建筑沿这一方向布置的基本构件的尺寸相关。最直接彰显这一模数的构件仍然是地面上的石灰华大理石铺块,它们的宽度是2尺。与这一模数对位关联的另外两种构件是隐藏在顶棚和底板内的混凝土预制板,它们垂直地搭在工字钢梁之上和之间,与前述柱梁共同组成了简单却理性规整的结构体系。

上述两个方向的模数网格叠加,就形成了一个以地面石灰华大理石铺装为直观表现的基本模数网格。每个基本网格的长度是2尺9寸,宽度是2尺。在范斯沃斯住宅当中,这一匀质网格体系已成了建筑的灵魂。它全面接管了建筑中的建构和形式生成。
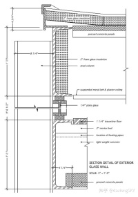
在范斯沃斯住宅的屋顶和底板外沿(即石灰华大理石铺装网格结束的地方),包裹着一圈高1尺3寸的槽钢。从形式上看,这一槽钢“封边”的宽大腹板显示了底板和顶棚作为一块有厚度平板的几何完整性。然而,一个更加重要的维度是槽钢水平翼缘(对于地面而言,准确地说应该是石灰华铺装边沿到槽钢外边的宽度区间,因为槽钢翼缘端头与石灰华铺装边沿之间尚有一缝隙),这一4寸宽区间所蕴含的意义是巨大的,因为密斯每一次从建造的意义上为表皮提供了存在的根基。




这首先要归功于几何秩序上的解决,它为表皮的存在提供了一个明确的、位于网格外围的宽度,一个在平面上独属于它的位置。接下来,密斯为这一宽度提供了一种构造上的明确解决,即用一圈槽钢加以围绕。这一切使得玻璃表皮在底部得以承托,在上部得以收头。可以说,范斯沃斯住宅中的玻璃板片已经彻底获得了独立、清晰和完整的建构根基。
入口平台与主体建筑的分离
密斯之所以将范斯沃斯住宅入口前的那块平台处理成一个独立的结构板块,并与主体的底板在平面和垂直高度上完全脱开,其原因在于:对密斯而言,如果空间和形式上需要某种延续,那么必须首先从建构上给出令人满意的解答,否则只有放弃,即便这种需求是功能上的也不能例外。

表皮之外,紧贴在南北立面槽钢墙边外侧的建构元素是柱。虽然在平面上它们只是一些点状要素,且截面也是异型的“工”字,但密斯仍然赋予了它们独立存在的意义。对密斯而主,“工”字钢断面外包的8寸 X 8寸的方形才是其内在的建构维度。四根柱成排布置,在平面内暗示了一条8寸宽的独属于结构的条带。它与4寸宽的表皮条带紧贴却界限分明。在这里,密斯追求的仍是构件在建造逻辑上的清晰界定,而这恰与结构理性相悖。因为柱与顶棚及底板的连接是侧面焊接,这样的受力关系即便在视觉表象上也不合理。而密斯近乎执拗地将工字钢与槽钢间的焊缝打磨干净,更加有力地印证了他的建构取向。

至此,范斯沃斯住宅在进深方向上的基本几何秩序已经变得非常清晰,从北向南依次是柱子所在的8寸宽的结构条带;然后是4寸宽的底板和顶棚封边槽钢,也即表皮条带;接下来是14格2尺宽的石灰华大理石铺装;最后是与北面对称存在的4寸宽表皮条带和8寸宽的结构条带。至此,一个完整的几何秩序已经完整。主体西南角的独立平台在这一方向上继续重复了这一几何秩序,唯一的区别在于它表面的石灰华铺装只有11格,而非主体内的14格。另外,它与前者共用了其间的两根长柱,即两者中间的结构条带可视为重合。


然而,在范斯沃斯住宅中,东西向上,这种清晰的几何建构逻辑却未能圆满实现。但总而言之,这座住宅在总体上实现了部分的匀质,是密斯通向终极匀质建构过程中的重要探索之一。因此,可以将之视为“半匀质的盒子”,在随后的一系列设计中,密斯逐渐趋近于完美的匀质。

密斯说:“我相信我的作品对其他人的影响力是因为它的合理性(Reasonability)。任何人都可以以它(理性原则)来工作而不至成为一个模仿者,因为它是完全客观的。我想,如果我发现什么是客观的,我就会运用它,而它源自于何人,并不重要。”

使用后记——洪水侵犯
由于住宅离福克斯河约100英尺远,密斯考虑到了洪水的潜在威胁。他相信这种升高的设计能抵御所能预测到的百年不遇的洪水灾害。然而由于芝加哥地区的发展,该河的径流量有所增加,他并不能预计住宅会遭遇更多洪水灾害。正如1954年那样,河流水位涨高6英尺(约1.83米),达到百年来最高水位,使得洪水灌进了住宅。从现在的调查结果来看,从1954年开始,住宅内部遭遇了6次洪水侵袭,在1996年、1997年以及前不久的2008年,遭遇洪水灾害愈发频繁。



洪水泛滥诱发了一系列问题,如住宅的维护、室内通风不佳、成本超出预算等。人们不得不考虑这样的居所是否适宜居住。这类问题固然存在,但是住宅所彰显的简单这一本质是毫无疑问的。密斯的设计不仅充满了艺术美感,而且也成为许多其他作品的灵感来源,正如菲利普·约翰逊对玻璃屋的设计就是取材于此。这种人造几何形态融入周围风景之中,恰如其分地诠释了简单至极的住宅理念。像密斯所说的那样,“如果能在住宅里欣赏到大自然的美景,意义就比直接置身大自然要深远得多。以这种方式融入自然,大自然就变成了居住者自身所拥有的美景。”
细部:






图纸:








老照片:













本文贡献方:
主要贡献:《“匀质”的秩序与“清晰的建造”—— 密斯·凡·德·罗》汤凤龙 著,中国建筑工业出版社;
《以S住宅和范斯沃斯住宅对比SANAA 和密斯的设计策略》 杨国俊,重庆大学
archdaily;图片来源:google;flickr;wikipedia;pinterest等公开平台。
转载 全文组织:树状模式